martyrs.

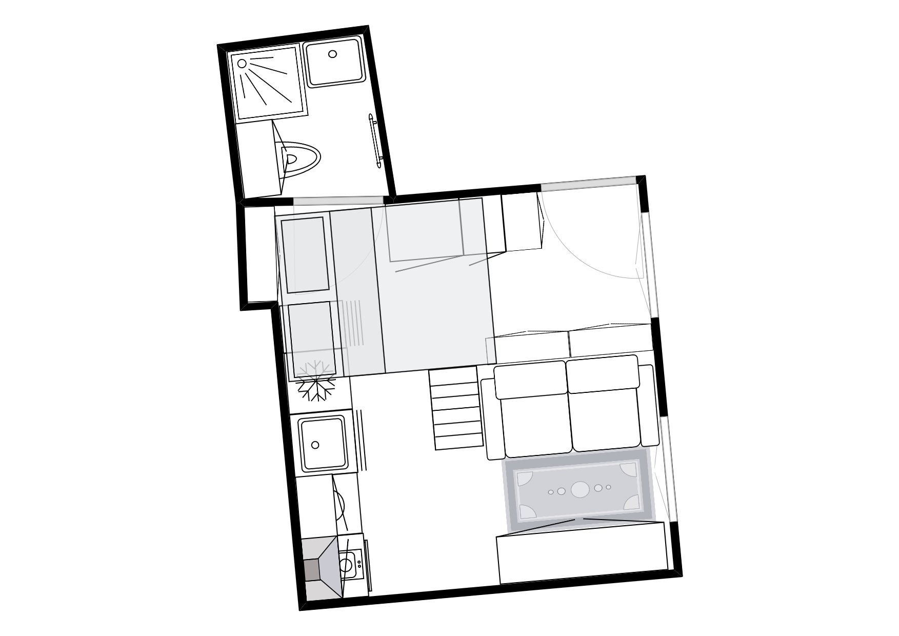
Afin d’optimiser l’espace au mieux, nous avons créé, au-dessus d’un bel escalier architectural d’un kaki profond, une mezzanine permettant d’accéder à un lit queen size et des rangements cachés.
En-dessous, l’entrée distribue le dressing sous la mezzanine, la salle de bains compacte, et une cuisine agréable et un coin salon avec un meuble TV sur-mesure, se transformant en banc et table escamotables.

Concernant l’esprit déco de cet appartement, le client souhaitait des éléments lumineux, agrémentés de quelques touches de couleur. Le sol, en béton ciré, donne une impression d’espace à cette petite pièce. 
Le vert de l’escalier, souligné de touches de bois foncé, donne tout son caractère à l’appartement.

Un petit appartement de 16m2 au coeur du 9ème, avec une belle hauteur sous plafond, mais qui n’avait pas été rénové depuis des années.

Jordan, le client, souhaitait acheter son premier appartement, dans un des quartiers les plus dynamiques de Paris.
Avec peu de m2, il fallait tout reprendre pour créer un cocon agréable à vivre pour ce jeune trentenaire.

Projet réalisé pour Kyka

Crédit photo : Laurent de Broca

avant.

  • Une pièce déstructurée et peu de rangements

  • Une cuisine minuscule

  • Une SDB désuète

après.

  • Un espace entrée avec un banc et du rangement

  • Un bel espace dressing

  • Une mezzanine sur-mesure avec couchage queen size

  • Une cuisine confortable

  • Une salle de bains remise au goût du jour

Précédent
Précédent

vaucouleurs.